+Upload File
JOIN CHAT
About Us
Contact Us
Install
HELP
Categories
BUYING GUIDE
PROJECTS
Videos
DONATE
Help
Categories
Buying Guide
PROJECTS
Videos
CNC FILE
Recents in Beach
ACCESS FREE ENTIRE CAD LIBRARY DWG FILES
Download free AutoCAD drawings of architecture, Interiors designs, Landscaping, Constructions detail, Civil engineer drawings and detail, House plan, Buildings plan, Cad blocks, 3d Blocks, and sections.
Home
Autocad
Urban CAD drawings
LANDSCAPING DETAILS OF PLOT AREA WITH OTHER DETAILS IN AUTOCAD
.
LANDSCAPING DETAILS OF PLOT AREA WITH OTHER DETAILS IN AUTOCAD
Tags:
Autocad
City architecture map cad drawings
Free DWG
Urban CAD drawings
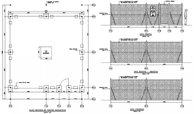
Landscaping details of plot area with other details in autocad which includes compound wall and entry gate details. Dimension and plot area plan details are also included in the drawing.
Download
Modern House Plan [DWG]
Tuesday, August 06, 2024
Different Structural Details [DWG]
Thursday, June 15, 2023
VARIOUS VEHICLE TURNING RADIUS /CIRCLES [DWG, PDF]
Thursday, February 11, 2021
House Electrical Installation [DWG]
Saturday, February 20, 2021
AutoCAD Blocks for HVAC Design [DWG]
Wednesday, January 06, 2021
+900 Free Autocad Hatch Patterns [PAT, DWG]
Saturday, January 30, 2021
House plumbing DWG
Tuesday, October 20, 2020
Structural Steel Connections [DWG]
Thursday, June 15, 2023
Hospital Project [DWG]
Tuesday, March 16, 2021
Shopping Mall, Office, and Leisure [DWG]
Thursday, June 15, 2023
How To Download Files
DOWNLOAD OUR APPS
Application ACCESS FREE ENTIRE CAD LIBRARY DWG FILES
Be the first of your friends to like this
Contact Form
Name
Email
*
Message
*